A very cool rumour that we just had to post about today as an Alton Towers museum set to be the home of the parks archives might be in the works.
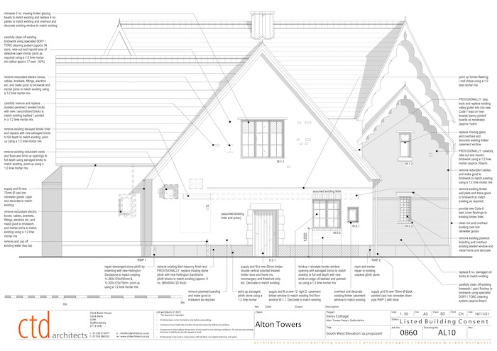
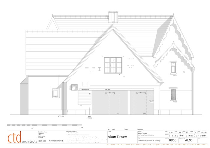
Recently Alton Towers Resort has submitted an application seeking listed building consent for repair and making-good works to the back of The Swiss Cottage located in the Gardens.
The building dates back to 1835 and was built for the 16th Earl of Shrewsbury as a focal point of the gardens.
It was once home to a blind welsh harpist who was employed by the Earl and when the park became a more commercial establishment it was a tearoom and later a restaurant.
The building is largely vacant now but is still a prominent feature of the gardens but is in need of some repair work.
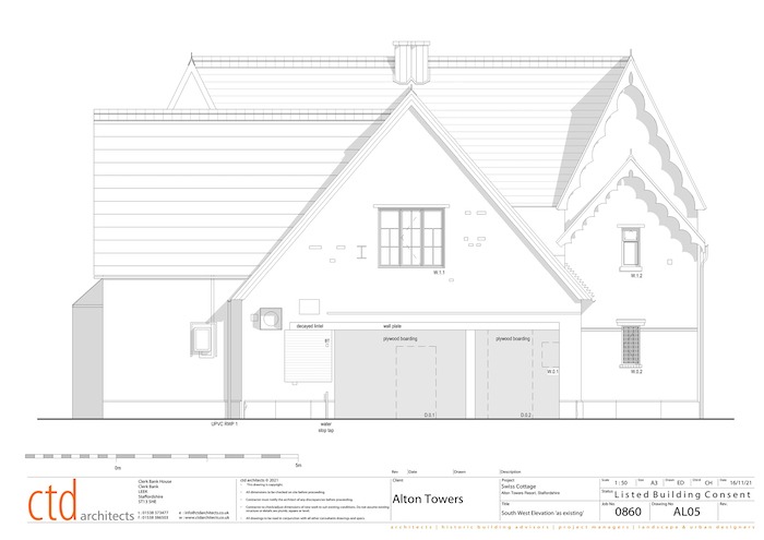
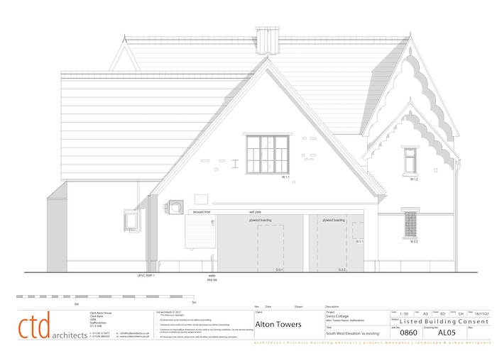
In 2019, the modern felted flat room to the rear extension collapsed and after authorisation the rear extension was removed completely and the original rear elevation would be resorted and repaired and here we are.
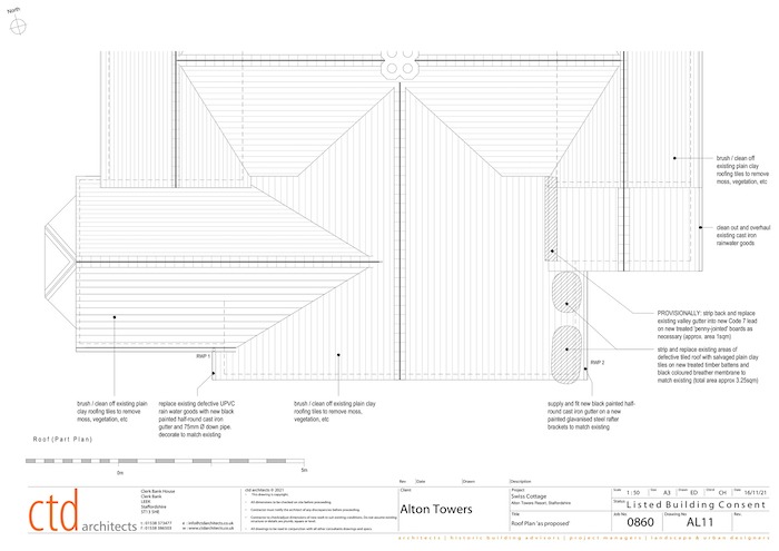
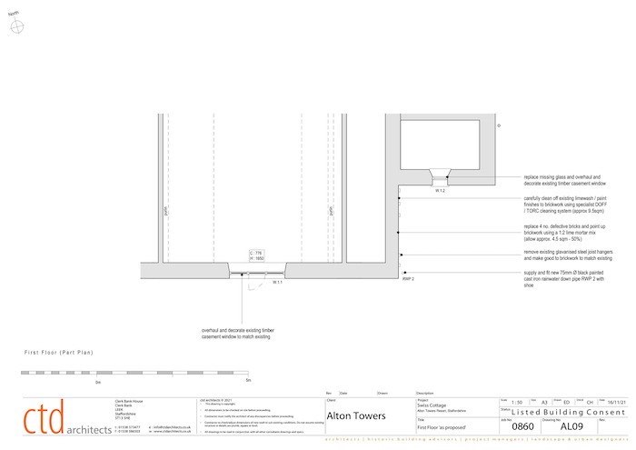
The brand new planning application outlines the reinstatement of the former doorway with a new vertical boarded painted timber door and frame, and the reinstatement of a former window opening, including the installation of a new 12-light painted timber, opening casement window.
Other procedures are outlined in the application (see below) but why are they bothering now?
Click an image to see full size
Well, in the application notes there are numerous future uses for The Swiss Cottage which include it being used as an estate office, returning it to a food and beverage place and last but not least a museum of memorabilia.
All of these are plausible uses for the restored Swiss Cottage had it not been for numerous members of staff absolutely adamant that the plans are for the building to be home of the Alton Towers Archives.
An Alton Towers museum would be a great use for the building and would certainly be in an absolutely wonderful location although crowding could be an issue with the small paths and limited space around the cottage.
Watch this space as an Alton Towers Museum could very well come to fruition in the years ahead!






