Chessington World of Adventures Safari Lodges Planning Submitted

Chessington World of Adventures

Chessington World of Adventures Safari Lodges look to be in their first stages of development as planning permission has been submitted.

Today, Chessington World of Adventures Resort have submitted applications to provide details of their proposed Safari Lodge accommodation development.

Chessington World of Adventures already has arguably the strongest hotel (Safari hotel) of any UK Merlin park with the beautiful Wanyama Reserve providing guests with views of Zebra, Giraffe and Ostrich’s every morning, noon and night.

This step forward to add more accommodation only strengthens the resort and allows guests more variety in their choice of places to stay.

Chessington Safari Lodges

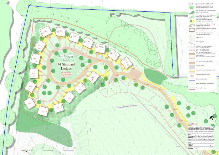
This proposal consists of 34 lodges in total with a centralised children’s play area situated in a courtyard in the middle of the development.

Construction is set to begin in December 2021 and is aiming to be opened in 2023.

Chessington Safari Lodges Design

It’s certainly a busy time for Chessington World of Adventures Resort in terms of ongoing developments as plans for a new ride are firmly underway as a winged coaster looks to be heading to the theme park.

Officially the first coaster at Chessington World of Adventures Resort to feature an inversion the ride is rumoured to be themed around the Jumanji movies.

Sony Entertainment recently licensed its Jumanji franchise and Merlin Entertainments have already set the cogs in motion for a dark ride at Italian based themed park Gardaland.

The ride is set to be manufactured by Garmendale who recently installed the Gangsta Granny: The Ride at Alton Towers.

This new ride however is known as the ‘Motion Master’ a more versatile model in the Garmendale range which is faster and allows for quicker and more varied movement and rotations than that of the Gangsta Granny: The Ride instalment.

Named Jumanji: The Adventure the ride will open in 2022.

As far as Chessington World of Adventures are concerned the winged coaster (as per the concept art/planning documents) looks very much like an Intamin manufactured coaster.

No news about the upcoming Chessington World of Adventures coaster has been revealed and the Jumanji IP is mere speculation at this point because of the Jumanji board game shaped topiary that is featured in the ride plans.

See below:

Chessington World of Adventures Jumanji

Planned to be located on the field opposite Dragon’s Fury, the new land would consist of the winged rollercoaster as its main attraction, along with two children’s rides.

This new Amazon themed expansion in addition to the Safari Lodges is just another step forward for Chessington World of Adventures.

Their first ride with an inversion, the second winged-coaster in the UK and more accommodation added to the already impressive Safari and Azteca Hotel that the park already has to offer its guests.

Leave a Reply

Your email address will not be published. Required fields are marked *

Lift Hills and Thrills